Print Friendly, PDF & Email 

Traction elevators / Passenger type - Geared basement

Elevation view 

 Simplex  Duplex

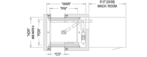
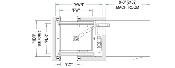
Simplex front opening

PDF Files:

Single speed opening 

simplexFrontMin

Duplex front opening

PDF Files:

Single speed opening 

duplexFrontMin

Simplex front and rear opening

PDF Files:

Single speed opening 

simplexFrontRearMin

Duplex front and rear opening

PDF Files: 

Single speed opening 

duplexFrontRearMin

 

Elevation view

Gearedbasement