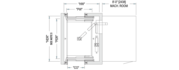
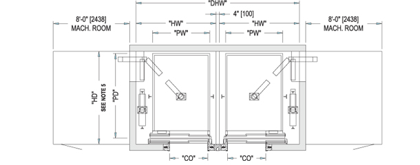
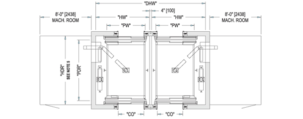
Traction elevators / Hospital type - Geared basement
| Simplex | Duplex |
|
Simplex front opening PDF Files: Double speed |
Duplex front opening PDF Files: |
|
Simplex front and rear opening PDF Files: Double speed |
Duplex front and rear opening PDF Files: |





