Usine Global Tardif

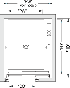
Simplex Entrée avant

Simplex Entrée avant et arrière

Duplex Entrée avant

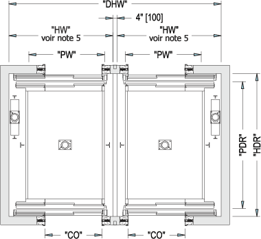
Duplex Entrée avant et arrière

Triples Entrée avant

Triplex Entrée avant et arrière

Élévation

©2006 Groupe manufacturier d'ascenseurs Global Tardif
Global-Tardif se réserve le droit de discontinuer des modèles ou options, de changer des caractéristiques, termes et conditions de garantie, matériaux, équipements ou prix sans préavis et sans obligation de sa part.
Pour tout commentaire sur le site : webmaster@glogaltardif.com