Usine Global Tardif

GT VisionLift Traction

Électrique, à engrenage "Machine en bas " Type hôpital

Guide technique

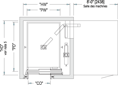
Simplex - Entrée avant
Simplex - Entrée avant et arrière

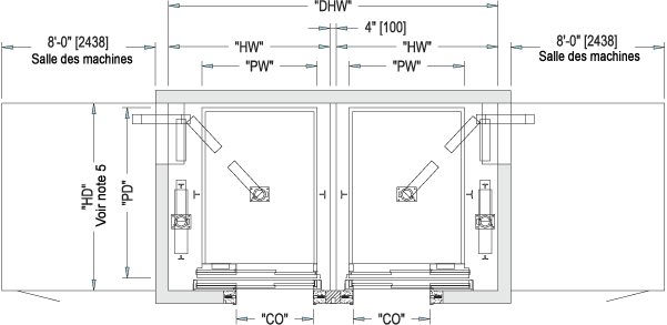
Duplex - Entrée avant
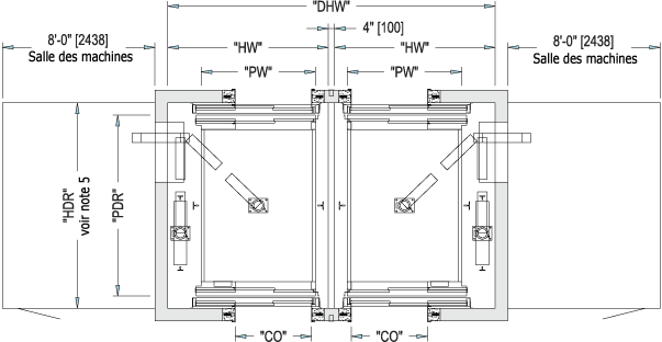
Duplex - Entrée avant et arrière

Élévation


Simplex Entrée avant

Simplex Entrée avant et arrière

Duplex Entrée avant

Duplex Entrée avant et arrière

Élévation

 

©2006 Groupe manufacturier d'ascenseurs Global Tardif
Global-Tardif se réserve le droit de discontinuer des modèles ou options, de changer des caractéristiques, termes et conditions de garantie, matériaux, équipements ou prix sans préavis et sans obligation de sa part.
Pour tout commentaire sur le site : webmaster@glogaltardif.com