Usine Global Tardif

Simplex Front opening

Simplex Front and rear opening

Duplex Front opening

Duplex Front and rear opening

Triples Front opening

Triplex Front and rear opening

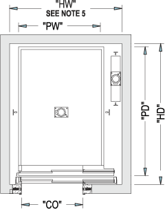
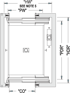
Elevation

©2006 Global Tardif Elevator Manufacturing Group Inc.
Global-Tardif reserves the right to discontinue models or options at any time or change the specifications, warranty terms, materials, equipment or pricing without notice and without incurring obligation.
For any comments on this site : webmaster@glogaltardif.com