Usine Global Tardif

GT VisionLift Traction

Electrical, geared "Above/Beside" - Passenger type

Technical guide

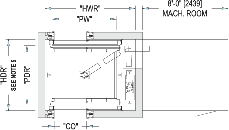
Simplex - Front opening
Simplex - Front and rear opening

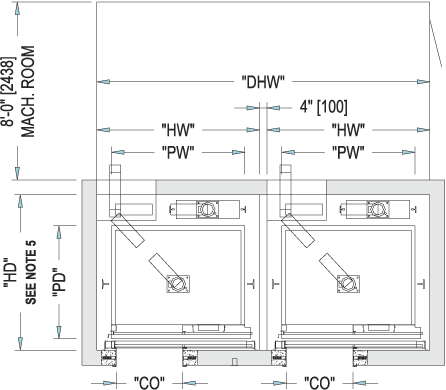
Duplex - Front opening
Duplex - Front and rear opening

Elevation


Simplex Front opening

Simplex Front and rear opening

Duplex Front opening

Duplex Front and rear opening

Elevation

 

©2006 Global Tardif Elevator Manufacturing Group Inc.
Global-Tardif reserves the right to discontinue models or options at any time or change the specifications, warranty terms, materials, equipment or pricing without notice and without incurring obligation.
For any comments on this site : webmaster@glogaltardif.com