Usine Global Tardif

GT VisionLift Express
Pre-Engineered Hydraulic Elevator

 

Holed (in ground)
Passenger type


View it with
Adobe® Reader®
Single speed opening
Center opening


Download Autocad File Autocad
Single Speed Opening
Center opening

Overhead dimension
Speed
Overhead (OH)
up to 100
12'-2''
125
12'-3''
150
12'-4''

Pit dimensions
Location
Depth
USA - Canada
(except Ontario)
4'-0''
Ontario
5'-0''

Machine room dim.
Width
Depth
6'-6''
6'-6''


View it with
Adobe® Reader®

Single Speed Opening
Center opening

Download Autocad File Autocad
Single Speed Opening
Center opening

 



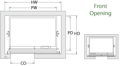
Hoistway width
Hoist depth
Platform width
Platform depth
Cab inside width
Cab inside depth
Clear opening
HW
HD
PW
PD
CIW
CID
CO
100"
2540
69"
1753
84"
2134
61"
1549
80"
2032
51"
1295
42" x 84"
1067 x 2134


Hoistway width
Hoist depth
Platform width
Platform depth
Cab inside width
Cab inside depth
Clear opening
HW
HDR
PW
PDR
CIW
CID
CO
100"
2540
79 1/4"
2013
84"
2134
66 3/4"
1695
80"
2032
51 3/4"
1314
42" x 84"
1067 x 2134

<< *Download Autodesk DWF Viewer (Free)


Holed (in ground)
Hospital type


View it with
Adobe® Reader®


Download Autocad File Autocad

 

Overhead dimension
Speed
Overhead (OH)
up to 100
12'-2''
125
12'-3''
150
12'-4''

Pit dimensions
Location
Depth
USA - Canada
(except Ontario)
4'-0''
Ontario
5'-0''

Machine room dim.
Width
Depth
6'-6''
6'-6''


View it with
Adobe® Reader®


Download Autocad File Autocad



Hoistway width
Hoist depth
Platform width
Platform depth
Cab inside width
Cab inside depth
Clear opening
HW
HD
PW
PD
CIW
CID
CO
72"
1829
101"
2565
56"
1422
91"
2311
52"
1321
80"
2032
36" x 84"
915 x 2134


Hoistway width
Hoist depth
Platform width
Platform depth
Cab inside width
Cab inside depth
Clear opening
HW
HDR
PW
PDR
CIW
CID
CO
72"
1829
114 1/4"
2902
56"
1422
98 3/4"
2508
52"
1321
80 3/4"
2051
36" x 84"
915 x 2134

<< *Download Autodesk DWF Viewer (Free)

 

©2006 Global Tardif Elevator Manufacturing Group Inc.
Global-Tardif reserves the right to discontinue models or options at any time or change the specifications, warranty terms, materials, equipment or pricing without notice and without incurring obligation.
For any comments on this site : webmaster@glogaltardif.com