
Available Hoistway Configurations : |
|
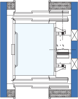
![]() |
Hoistway | 69" W x 79" D |
|
| Platform | 44 1/2" W x 68 3/4" D (1130 x 1746 mm) |
||
| Inside Cab | 42" W x 60" D (1067 x 1524 mm) |
||
| Inside Cab Clear Height | 80" (2032 mm) |
||
| Clear Opening | 36" W x 84 H (914 x 2134 mm) |
||
Pit Depth |
15" (381 mm) |
||
|
Autocad Drawings • SF500 Commercial |
WORK DONE BY OTHERS (Microsoft Word Documents): |
|
PDF Drawings • SF500 Commercial |
You need Adobe Reader® to view these drawings. If not previously installed on your computer click on this button to download and install it: |
||
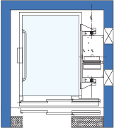
![]() |
Hoistway | 69" W x 86 1/2" D |
|
| Platform | 46" W x 71" D (1168 x 1803 mm) |
||
| Inside Cab | 42" W x 56" D (1067 x 1423 mm) |
||
| Inside Cab Clear Height | 80" (2032 mm) |
||
| Clear Opening | 36" W x 84 H (914 x 2134 mm) |
||
Pit Depth |
15" (381 mm) |
||
|
Autocad Drawings • SF500 LU/LA Layout & Elevation View • SF500 Commercial |
WORK DONE BY OTHERS (Microsoft Word Documents): |
|
| PDF Drawings • SF500 LU/LA Layout & Elevation View • SF500 Commercial |
You need Adobe Reader® to view these drawings. If not previously installed on your computer click on this button to download and install it: |
||
| Related infos |
|
• Brochure • Specifications SF500R: (Pdf) (Word) SF500C: (Pdf) (Word) SF500LULA: (Pdf) (Word) • Cab Weight Chart • Melamines (Standard ) • Plastic Laminates (Option) • Entrance color • 1 year warranty • Request for proposal (PDF) (MS Excel) |
GTAccessibility.com is a website of GLOBAL TARDIF Elevator Manufacturing Group
Global-Tardif reserves the right to discontinue models or options at any time or change the specifications,
warranty terms, materials, equipment or pricingwithout notice and without incurring obligation.
For any comments on this site : webmaster@glogaltardif.com
Copyright © 2006 Global Tardif Elevator Manufacturing Group inc.